代々木3丁目戸建 1
中古一戸建て
閲覧済み
代々木3丁目 参宮橋駅 徒歩 3分 2億800万円
- おすすめ
- NEW
- 価格変更
- 会員限定
東南側角地 陽当良好 ビルドイン車庫天井高め
交通
小田急線 参宮橋駅 徒歩 3分山手線 代々木駅 徒歩 10分
京王線 初台駅 徒歩 12分
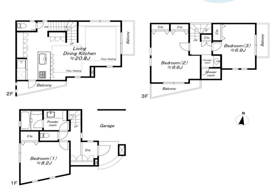
間取り
3LDK築年月
2011年11月完成建物面積
107.14㎡土地面積
64.88㎡

- POINT
- こちらは弊社仲介手数料半額でご紹介できます お問合せは地元弊社まで
代々木3丁目 参宮橋駅 徒歩 3分 2億800万円
交通
小田急線 参宮橋駅 徒歩 3分山手線 代々木駅 徒歩 10分
京王線 初台駅 徒歩 12分
間取り
3LDK築年月
2011年11月完成建物面積
107.14㎡土地面積
64.88㎡| 物件名称 | 代々木3丁目戸建 1 |
|---|---|
| 価格 | 2億800万円 |
| リフォーム | あり [施工時期] 2025年06月 [箇所] 全室クロス張替 浴室 [内容] 他にガスコンロ交換 ハウスクリーニング済 即入居可 |
| 所在地 | 東京都渋谷区代々木3丁目41-7地図 |
| 交通 | 小田急線 参宮橋駅 徒歩 3分 山手線 代々木駅 徒歩 10分 京王線 初台駅 徒歩 12分 |
| 間取り | 3LDK |
| 建物面積 | 107.14㎡ |
| 土地面積 | 64.88㎡ |
| 地目 | 宅地 |
| 土地権利 | 所有権 |
| 築年月 | 2011年11月完成 |
| 建物構造 | 木造(W) |
| 建物階建 | 3階建 |
|---|---|
| 駐車場 | あり 1台 敷地内 屋内 無料 ビルドイン車庫 天井高あり |
| 設備・条件 | 床暖房システムキッチン追い焚き浴室乾燥機フローリングTVドアホンバルコニー日当り良好ガス:都市ガスコンロ:ガス、三口洗濯機置場:室内 |
| 用途地域 | 第二種中高層住居専用地域 |
| セットバック | なし |
| 私道負担 | なし |
| 接道状況 | 東:幅員5.4m公道 南東:幅員3.1m公道 |
| 地域地区 | 準防火地域 |
| 物件情報更新日 | 2025年12月07日(物件情報更新日より14日以内に更新) |
| 物件コード | 229 |
| 取引態様 | 仲介 |
- 地図アクセス
この物件のお問い合わせ先
株式会社ファースト・クリエイト
お電話でのお問い合わせ
03-5333-5911
〒151-0053
東京都渋谷区代々木4丁目10番5号
- [ TEL ]
- 03-5333-5911
- [ FAX ]
- 03-5333-5912
- [ 営業時間 ]
- 10:00~19:00
- [ 定休日 ]
- 水曜日
- [ アクセス ]
- 小田急線「参宮橋」駅下車徒歩1分
- 一部、完成後1年以上を経過した未入居物件が新築物件として掲載される場合がございます。
- 敷地権利が定期借地権のものは価格に権利金を含みます。
- 完成予想図はいずれも外構、植栽、外観等実際のものとは多少異なる場合がございます。
- CG合成の画像の場合、実際とは多少異なる場合がございます。
- 図面と現況が異なる場合には現況を優先いたします。
- 地積、建物床面積、仕様に変更が生じる場合がございます。
- 物件情報は最新のものをご提供させていただきますが、万一売約済の場合はご容赦ください。
- 建築条件付土地の販売は、売買契約後一定期間内に売主との間で建築請負契約を結ぶことが条件となり、この期間内に建築請負契約が成立しない場合は、受領金を全額返済した上で土地売買契約は白紙となります。
- 掲載物件の取引態様が「仲介」「一般」「専属」「専任」となっているものは、ご成約の際に規定の手数料及びそれに係わる消費税を別途申し受けます。
- 間取り表示のSはサービスルーム(納戸)の略称です。WICはウォークインクローゼット、DENは書斎の略称です。
- 参考プランは、土地の購入者の設計プランの参考に資するための一例であって、参考プランを採用するか否かは土地購入者の自由な判断に委ねられます。


