シェトワ代々木
中古マンション
閲覧済み
代々木4丁目 参宮橋駅 徒歩 6分 8999万円
- おすすめ
- NEW
- 価格変更
- 会員限定
室内フルリノベーション 人気の3LDK 歴史のある閑静な住宅街
交通
小田急線 参宮橋駅 徒歩 6分京王線 初台駅 徒歩 7分
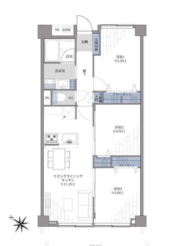
間取り
3LDK築年月
1983年04月完成専有面積
58.86㎡共益費・管理費
26,200円修繕積立金(月額)
18,420円

- POINT
- 明治神宮・代々木公園徒歩圏内の緑豊な住宅街 副都心新宿や渋谷に出やすく交通や買物便利が便利な立地です 参宮橋エリアは地元の弊社までお任せください
代々木4丁目 参宮橋駅 徒歩 6分 8999万円
交通
小田急線 参宮橋駅 徒歩 6分京王線 初台駅 徒歩 7分
間取り
3LDK築年月
1983年04月完成専有面積
58.86㎡共益費・管理費
26,200円修繕積立金(月額)
18,420円| 物件名称 | シェトワ代々木 |
|---|---|
| 価格 | 8999万円 |
| 共益費・管理費 | 26,200円 |
| 修繕積立金(月額) | 18,420円 |
| リノベーション | あり 施工時期 2025年11月 内容 室内フルリノベーション 12月に完了予定 |
| 所在地 | 東京都渋谷区代々木4丁目22-14地図 |
| 交通 | 小田急線 参宮橋駅 徒歩 6分 京王線 初台駅 徒歩 7分 |
| 間取り | 3LDK |
| 専有面積 | 58.86㎡[壁芯] |
| 築年月 | 1983年04月完成 |
| 建物構造 | 鉄筋コンクリート造(RC) |
| 所在階/建物階建 | 地上3階/6階建 |
| 主要採光面 | 南西 |
|---|---|
| その他面積 | バルコニー面積:5.94㎡ |
| 現況 | 空 |
| 駐車場 | あり(空きなし) |
| 管理 | 管理形態:全部委託 管理人状況:日勤 |
| 設備・条件 | システムキッチンシャンプードレッサー追い焚き浄水器温水洗浄便座浴室乾燥機全居室収納フローリングTVドアホンエレベーターバルコニー閑静な住宅街日当り良好管理人有り駐輪場敷地内ゴミ置場オートロックガス:都市ガスコンロ:ガス、三口洗濯機置場:室内インターネット:光ペット:不可室内フルリノベーション |
| 土地権利 | 敷地権(所有権) |
| 備考 | 新耐震基準以降の建物です。 |
| 物件情報更新日 | 2025年11月21日(物件情報更新日より14日以内に更新) |
| 物件コード | 234 |
| 取引態様 | 仲介 |
- 地図アクセス
この物件のお問い合わせ先
株式会社ファースト・クリエイト
お電話でのお問い合わせ
03-5333-5911
〒151-0053
東京都渋谷区代々木4丁目10番5号
- [ TEL ]
- 03-5333-5911
- [ FAX ]
- 03-5333-5912
- [ 営業時間 ]
- 10:00~19:00
- [ 定休日 ]
- 水曜日
- [ アクセス ]
- 小田急線「参宮橋」駅下車徒歩1分
- 一部、完成後1年以上を経過した未入居物件が新築物件として掲載される場合がございます。
- 敷地権利が定期借地権のものは価格に権利金を含みます。
- 完成予想図はいずれも外構、植栽、外観等実際のものとは多少異なる場合がございます。
- CG合成の画像の場合、実際とは多少異なる場合がございます。
- 図面と現況が異なる場合には現況を優先いたします。
- 地積、建物床面積、仕様に変更が生じる場合がございます。
- 物件情報は最新のものをご提供させていただきますが、万一売約済の場合はご容赦ください。
- 建築条件付土地の販売は、売買契約後一定期間内に売主との間で建築請負契約を結ぶことが条件となり、この期間内に建築請負契約が成立しない場合は、受領金を全額返済した上で土地売買契約は白紙となります。
- 掲載物件の取引態様が「仲介」「一般」「専属」「専任」となっているものは、ご成約の際に規定の手数料及びそれに係わる消費税を別途申し受けます。
- 間取り表示のSはサービスルーム(納戸)の略称です。WICはウォークインクローゼット、DENは書斎の略称です。
- 参考プランは、土地の購入者の設計プランの参考に資するための一例であって、参考プランを採用するか否かは土地購入者の自由な判断に委ねられます。


